Projekte
Referenzen
Kontakt
Projekte
Referenzen
Kontakt
3400__AM RENNINGER 10
3400__AM REN...
Projekte
>
3400__AM RENNINGER 10
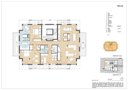
WOHNHAUSANLAGE mit 34 Wohnungen – 2.600m² Wohnnutzfläche in 2 Bauteilen mitunterirdischem Schräglift
Weitere Bilder